Trang Chủ Kiến trúc NHÀ 2 TẦNG MÁI NHẬT 8X14 TẠI TÂN HỘI ĐỨC TRỌNG

NHÀ 2 TẦNG MÁI NHẬT 8X14 TẠI TÂN HỘI ĐỨC TRỌNG

bởi An Phát
332 lượt xem

Mẫu nhà 2 tầng mái nhật 8×14 tại Tân Hội – Đức Trọng

Mẫu nhà 2 tầng mái nhật có diện tích xây dựng là 8×14 đẹp, tiện lợi tại Tân Hội Đức Trọng Lâm Đồng.

Mẫu thiết kế nhà 2 tầng mái nhật được nhiều chủ nhà ưa thích, vì kiểu dáng thiết kế đơn giản mà đẹp, sang trọng mà chi phí tiết kiệm hơn xây biệt thự.

Thông tin mẫu nhà 2 tầng mái nhật 8×14 tại Tân Hội

  • Chủ đầu tư: Anh Tân
  • Địa Chỉ: Tân Hội – Đức Trọng – Lâm Đồng
  • Diện tích: 8×14
  • Số tầng: 2 Tầng
  • Phong cách: Nhà mái nhật tân cổ điển
  • Thiết kế bởi : An Phát
  • Năm thực hiện: 2023
  • Chi phí đầu tư: 2.2 tỷ

Phối cảnh ngoại thất nhà 2 tầng mái nhật anh Tâm

Mẫu thiết kế nhà 2 tầng mái nhật được anh Tân chọn ngay từ đầu vì thế các kts của An Phát mong muốn mang tơi một sản phẩm tuyệt vời nhất đến cho anh Tâm.

Phối cảnh ngoại thất công trình anh Tâm ở Tân Hội.

Đẻ có thể tìm được một công ty xây dựng có thể mang lại thiết kế đẹp đáp ứng được nhu cầu của mình thì anh Tâm cũng như bao nhiêu chủ nhà khác cũng đi tham khảo rất nhiều công ty xây dựng khác. Qua thời gian tìm kiếm thì anh Tâm quyết định đến với An Phát nơi mà có giá thiết kế nhà 2 tầng mái nhật tốt nhất mà anh tìm hiểu. Không những vậy khi thi công anh có thể được giảm tới 50%-70% chi phí thiết khi giao cho An Phát thi công.

Phối cảnh ngoại thất công trình anh Tâm ở Tân Hội.

Mẫu nhà 2 tầng mái nhật của anh Tâm được thiết kế cổng rào đồng bộ với ngôi nhà, kết hợp giữa xây và sắt mỹ nghệ làm cho khu vực quanh nhà được vừa thoáng vừa đẹp mà rất sang trọng, tăng giá trị thêm cho một ngôi nhà.

Phối cảnh ngoại thất công trình anh Tâm ở Tân Hội.

Mẫu nhà 2 tầng mái nhật của anh Tâm được thiết kế thêm những đường chỉ ngang làm cho ngôi nhà thêm hài hòa với kích thước xây dựng, cho cảm giác ngôi nhà bề thế vững chắc hơn. Màu sắc của ngôi nhà chủ đạo là màu trắng kem, với phần chân ngôi nhà là màu xám làm cho ngôi nhà được chắc chắn vững chải của ngôi nhà.

Phối cảnh ngoại thất công trình anh Tâm ở Tân Hội.

Phần mái của mẫu nhà 2 tầng mái nhật của anh Tâm được chọn với ngói màu xanh rất hài hòa và phù hợp với tông màu trắng chủ đạo của nhà. Pha thêm những màu nâu của khung cửa đi và của sổ giúp cho ngôi nhà có điểm nhấn thu hút hơn.

Phối cảnh ngoại thất công trình anh Tâm ở Tân Hội.

Để có thêm những mảng xanh cho ngôi nhà, những ban công đều có chậu bông làm cho ngôi nhà mát mẻ và hài hòa với thiên nhiên hơn bao giờ hết.

>> Xem thêm: thiết kế nhà 2 tầng mái nhật 3 phòng ngủ

>> Xem thêm: nhà cấp 4 mái nhật 4 phòng ngủ

Mặt bằng công năng nhà 2 tầng mái nhật anh Tâm

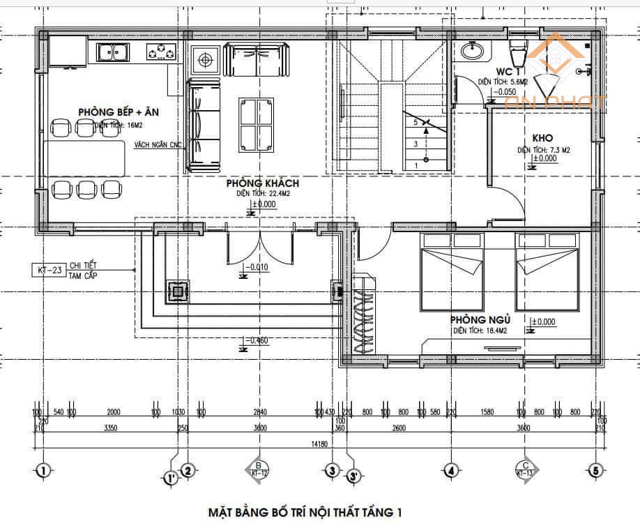
Mặt bằng bố trí nội thất tầng một của công trình anh Tâm ở Tân Hội.

Tầng một được bố trí bao gồm.

  • Từ sảnh bước vào là Phòng khách
  • Kế bên Phòng khách là Phòng bếp + ăn
  • 1 nhà vệ sinh chung
  • 1 phòng ngủ giành cho người lớn tuổi hoặc khách tới nhà
  • 1 kho chứa đồ của gia đình

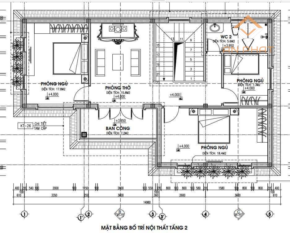
Mặt bằng bố trí nội thất tầng 2 của công trình anh Tâm ở Tân Hội.

Tầng hai được bố trí bao gồm:

  • Phòng thờ được bố trí vị trí trung tâm cảu tầng hai
  • 3 Phòng ngủ
  • 1 nhà vệ sinh chung

Với những nhu cầu sử dụng và sở thích của anh Tâm công ty đã thiết kế một công trình đẹp, phù hợp để đáp lạ sự tin tưởng của chủ nhà.

Mọi thắc mắc xin vui lòng liên hệ:

THÔNG TIN LIÊN LẠC:

Công ty TNHH TM&DV Tư Vấn Kiến Trúc Xây Dựng An Phát.

Hotline: 0984695979. Zalo: 0984695979.

Website: nhadepductrong.com

Email: xaydunganphat.ac@gmail.com

 

 

 

Có thể bạn thích

Để lại bình luận