Nếu quý anh chị các bạn đang có ý định tìm một mẫu thết kế nhà phố 2 tầng hiện đại thì hôm nay An Phát sẽ giới thiệu tới các bạng 1 mẫu thiết kế nhà phố 2 tầng đẹp.
Đây sẽ là một trong các lựa chọn tốt cho quý anh chị có ý định làm một mẫu nhà 2 tầng đẹp. Thiết kế nhà phố 2 tầng này được công ty An Phát thiết kế cho anh Thịnh tại Liên Nghĩa Đức trọng.Công trình được thiết kế theo phong cách hiện đại.
Diện tích của công trình là 5x17m tương đối là đủ không gian để đáp ứng mong muốn và nhu cầu chủ chủ nhà đối với công trình này.
Xem thêm: Mẫu nhà phố 2 tầng 5x15m
Về mặt kiến trúc, mẫu thiết kế nhà phố 2 tầng này được thiết kế theo phong cách hiện đại. Tông màu chủ đạo là tông màu trắng kết hợp với tông màu xám trang trí phần đua ra. Vì công trình 3 mặt không có ánh sáng tự nhiên cho nên phần cửa đi và cửa sổ mặt tiền ngôi nhà được thiết kế làm bằng cửa nhôm kính để lấy sáng cho căn nhà. Căn nhà chừa lại 1 khoản để làm sân trước để xe máy và làm khu vui chơi cho các thành viên trong gia đình. Có lẽ nhìn vào phần kiến trúc mẫu thiết kế nhà phố 2 tầng này chúng ta sẽ thấy có khá nhiều điểm khác biệt và rất khó có thể diễn tả được sự khác biệt, nét đẹp của công trình này. Mời quý anh chị cùng tìm hiểu về công năng và phối cảnh ngoại thất của căn nhà.
Thông tin về công trình nhà phố 2 tầng
- Chủ đầu tư: Anh Thịnh
- Địa điểm: Đức Trọng- Lâm Đồng
- Kích thước: 5x17m
- Số tầng: 2 tầng
- Số phòng: 3 Phòng ngủ
- Mặt tiền: 1
- Phong cách: Hiện đại
- Năm thực hiện: 2023
- Thiết kế kiến trúc + kết cấu + MEP: An Phát
- Kinh phí đầu tư: 550 triệu
Với thiết kế tỉ mĩ của chúng tôi tạo một ngôi nhà đầy đủ các yêu tố thẩm mĩ, công năng phù hợp với số thành viên trong gia đình và chú trọng đến sở thích của gia chủ tạo nên sự hài lòng của chủ nhà đối với công trình này.
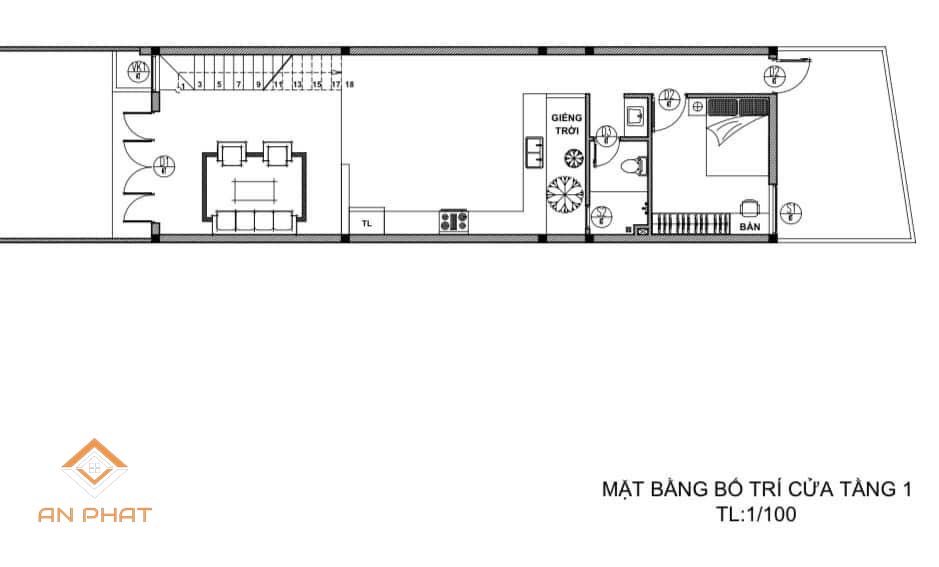
Mặt bằng công năng của công trình nhà phố 2 tầng

Mặt bằng công năng tầng 1 công trình anh Thịnh.
Thiết kế tầng 1 công trình nhà phố 2 tầng của anh Thịnh gồm có:
- 1 Phòng khách
- Phòng bếp + ăn
- 1 Giếng trời lấy sáng
- 1 Phòng vệ sinh chung
- 1 Phòng ngủ
Công trình có điểm nhấn tại khu vực giếng trời ngay bếp làm cho không gian tầng trệt thêm sáng hơn và thoáng hơn cho ngôi nhà.

Mặt bằng công năng tầng 2 công trình anh Thịnh.
Thiết kế tầng 2 công trình nhà phố 2 tầng của anh Thịnh gồm có.
- Khu vực phòng thờ
- 2 Phòng ngủ
- 1 Vệ sinh riêng cho căn phòng ngủ lớn
Công trình có khu vực khôn gian thờ cúng theo nhu cầu sử dụng của gia chủ, đặt điểm ở công trình này là tất cả các phòng ngủ đều có cửa sổ lấy ánh sáng tự nhiên và tạo sự thông thoáng cho căn phòng.
Phối cảnh 3D ngoại thất của công trình nhà phố 2 tầng

Phối cảnh ngoại thất công trình anh Thịnh.
Ngoại thất của công trình được thiết kế theo xu hướng hiện đại theo sở thích và tràn đầy năng lượng của chủ nhà. Phong cách hiện đại tạo cho mọi người cảm thấy thoải mái khi về tới tổ ấm sau một ngày làm việc mệt mỏi. Phong cách bền bỉ với thời gian không bị lỗi thời.

Phối cảnh ngoại thất công trình anh Thịnh.
Công trình nhà phố 2 tầng chỉ có 1 mặt tiền nên phần cổng cũng được chúng tôi thiết kế cho đồng bộ với căn nhà, tạo cho sự đồng nhất của một công trình khi đứng nhìn từ ngoài vào trong.

Phối cảnh ngoại thất công trình anh Thịnh.
Với sự tâm huyết của các kts đã mang đến cho chủ nhà một thiết kế mang lại sự thỏa mãn nhất cho khách hàng.
THÔNG TIN LIÊN LẠC
Hotline: 0984695979. Zalo: 0984695979.
Website: nhadepductrong.com



1 bình luận
[…] >> xem thêm :nhà phố 2 tầng 5x17m đẹp ở Đức Trọng. […]