Nhà cấp 4 mái thái 3 phòng ngủ
Thiết kế nhà cấp 4 mái thái 3 phòng ngủ là lựa chọn hoàn hảo của những gia đình có từ 3 đến 4 thành viên. Thiết kế nhỏ nhắn nhưng lại đầy đủ tiện ích, cùng với đó mang giá trị thẩm mỹ cao, tiết kiệm chi phí xây dựng. Mẫu nhà cấp 4 ở Đức Trọng được thiết kế theo phong cách hiện đại pha với truyền thống tạo nên nét độc đáo, riêng biệt.

Nhà cấp 4 mái thái 3 phòng ngủ.
Thông tin mẫu nhà cấp 4 mái thái 3 phòng ngủ
- Địa điểm xây dựng: Đức Trọng – Lâm Đồng
- Diện tích khu đất 15×30
- Diện tích xây dựng: 8x16m
- Công năng sử dụng: Phòng Thờ, phòng khách, bếp ăn, 3 phòng ngủ, 1 WC, 1 nhà tắm
- Thời gian thiết kế: 2023
- Liên hệ tư vấn : 0984695979
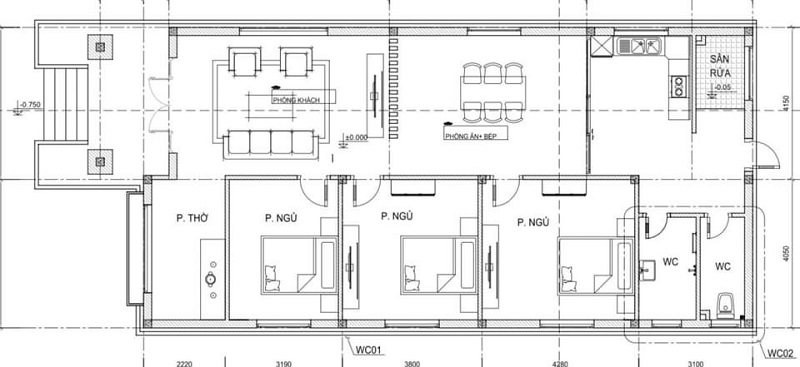
Mặt bằng nhà cấp 4 mái thái 3 phòng ngủ

Mặt bằng nhà cấp 4 mái thái 3 phòng ngủ tiện nghi
Sở hữu diện tích đất rộng nên các kiến trúc sư có thể thoải mái sáng tạo và bố trí các không gian sao cho tiện nghi và sang trọng nhất. Với thiết kế khách – bếp và 3 phòng ngủ đầy đủ công năng mang đến sự thoải mái nhất cho gia chủ. Từ sảnh chính vào là phòng khách lớn, nới để tiếp đón những vị khách quý. Liền tiếp là phòng bếp ăn thiết kế có cửa sổ để giúp cho không gian này trở nên thoáng đãng, tránh bị bám mùi thức ăn.
Bên phải sảnh chính là phòng thờ ngay lối vào, tiếp đến là 3 phòng ngủ liền nhau, các phòng ngủ đều có cửa sổ nhằm đưa ánh sáng tự nhiên vào giúp không gian trở nên thư giãn, thoáng đãng và tốt cho sức khỏe.
Phối cảnh 3D mẫu nhà cấp 4 mái thái 3 phòng ngủ

Mặt tiền của ngôi nhà được thiết kế 2 trụ vuông trắng lớn với phần chân cột được ốp đá. Cùng với đó là hệ thống mái thái, những họa tiết trang trí tân cổ độc đáo mang lại cảm giác sang trọng và rất tinh tế.
Hệ thống mái chữ A nổi bật xếp cạnh, so le nhau nhìn ra như những ngôi nhà nhỏ nằm sát cạnh nhau tạo thành một hệ thống nhất, bắt mắt. Thiết kế mái thái chữ A được kết cấu theo hình chữ A bằng các tấm bê tông dày, chắc chắn với độ dốc cao. Từ đó mà giúp cho khả năng thoát nước, chống đọng nước, chống thấm trở nên tốt hơn bao giờ hết.
Các kiến trúc sư đã thiết kế khoảng sân trước khá rộng lát đá xám giúp cho không gian nhà trở nên thoáng đãng và thu hút được nhiều không khí tự nhiên hơn. Kết hợp với hệ tường rào xây kết hợp với sắt mỹ nghệ vừa tạo khôn gian thiên nhiên , thoáng đãng lại vừa bảo đảm sự riêng tư, an toàn.
Để có sự đồng bộ từ ngoài vào trong không những mặt tiền bên ngoài đẹp bên trong cũng được các kiến trúc sư thiết kế phù hợp hài hòa mang lại sự sang trọng dẹp đẽ cho ngôi nhà.

Khu vực phòng thờ

Phòng khách

Phòng bếp ăn

Phòng ngủ
Nội thất công trình được thiết kế với màu tường trần được sơn màu trắng kết hợp với nội thất màu gỗ tạo cho không gian thêm sang trọng và tạo được sự ấn tượng ngay lần đầu thấy.
Phòng ngủ được thiết kế lát gạch giả gỗ kết hợp với đồ nội thất tủ giường bằng gỗ công nghiệp đa dạng về mẫu mã.
Bản vẽ thiết kế nhà cấp 4 mái thái 3 phòng ngủ bao gồm.
- Bản vẽ chi tiết kiến trúc.
- Bản vẽ kết cấu công trình.
- Hình ảnh phối cảnh 3D ngoại thất.
- Hình ảnh phối cảnh 3D nội thất.
- Bản vẽ kết cấu công trình
- Bản vẽ kỹ thuật ME
- Dự toán công trình: chi tiết chi phí xây dựng.
Các công trình đều được đặt rất nhiều tâm huyết, sáng tạo để mang đến những trải nghiệm tuyệt vời nhất tới quý khách hàng. Nếu quý khách hàng yêu thích mẫu nhà cấp 4 mái thái 3 phòng ngủ này hoặc đang quan tâm đến thiết kế thi công nhà ở thì đừng ngại hãy gọi cho chúng tôi để được tư vấn và hỗ trợ nhanh nhất nhé.
Xêm thêm mẫu nhà cấp 4 mái thái.
–Nhà 1 tầng mái thái 3 phòng ngủ
Thông tin liên hệ.
Công ty TNHH TM&DV Tư Vấn Kiến Trúc Xây Dựng An Phát.
Sđt: 0984695979. Zalo: 0984695979.
Email: xaydunganphat.ac@gmail.com


