MẪU NHÀ MÁI NHẬT 1 TẦNG 8.6X15.5
Nhà 1 tầng cấp 4 mái nhật đơn giản đang được rất nhiều gia đình lựa chọn xây dựng. Nếu sở hữu mảnh đất rộng và yêu thích cuộc sống gần gũi với thiên nhiên thì mẫu nhà mái nhật giới thiệu trong bài viết này là lựa chọn lý tưởng cho gia đình bạn. Mẫu nhà mái nhật này được thiết kế vô cùng đẹp mắt, với chi phí tiết kiệm nhưng vẫn đảm bảo công năng sử dụng.

TỔNG QUAN MẪU NHÀ MÁI NHẬT 1 TẦNG 8.5X15.5
- Địa chỉ xây dựng: Cư xá – Đức Trọng – Lâm Đồng.
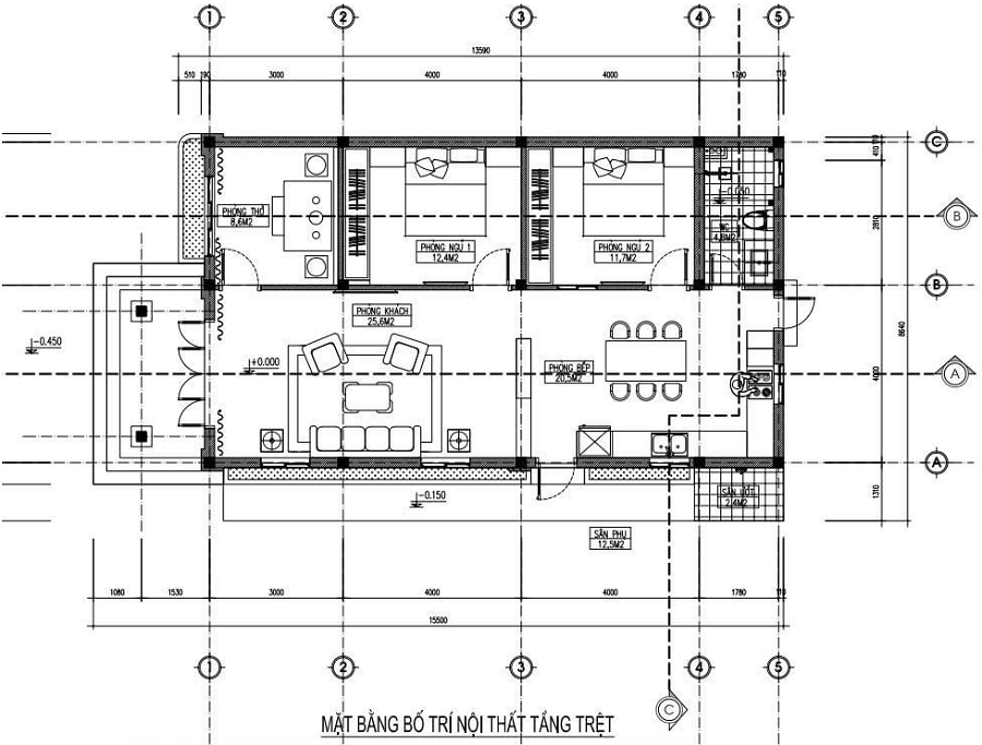
- Công năng sử dụng: 1 phòng khách, 1 phòng bếp + ăn. 2 phòng ngủ, 1 WC, 1 phòng thờ.
- Diện tích xây dựng: 8.5×15.5m
- Chi phí thiết kế kiến trúc : 120.000 đ/m2
- Chi phí thiết kế nội thất : 100.000 đ/m2
- Chi phí thi công xây dựng: Liên hệ : 0984695979
PHỐI CẢNH MẪU NHÀ MÁI NHẬT 1 TẦNG 8.5X15.5
Mẫu thiết kế biệt thự vườn 1 tầng này với những hàng cây xanh mát, không gian thông thoáng, khu vực sân vườn rộng rãi tạo nên một không gian nghỉ ngơi thư giãn lý tưởng. Thêm vào đó, với diện tích sàn 130m2 được bố trí công năng khoa học đã tạo nên cho chủ đầu tư một khu vực sinh hoạt tiện nghi và thoải mái nhất. Mời quý khách hàng tham khảo thêm công trình qua các hình ảnh và thông tin dự án. Hy vọng qua nét đẹp của ngôi nhà sẽ giúp cho gia chủ có được những ý tưởng và phương án thiết kế cho căn nhà của mình.

Được thiết kế với mái nhật đợn giản nhưng ngôi nhà 1 tầng này vẫn toát lên được diện mạo sang trọng và cuốn hút. Căn nhà xây dựng trên diện tích 130m2 với hệ mái nhật màu xám vô cùng ấn tượng. Với phần mái nhật đồ sộ nó mang đến cho ngôi biệt thự diện mạo bề thế, khang trang và uy nghi. Mái nhật có độ bền vững chắc, phù hợp với khí hậu nhiệt đới ở Việt Nam nên rất nhiều gia chủ ưu chuộng và lựa chọn cho ngôi nhà của mình.

Nổi bật nhất vẫn là hệ thống mặt tiền được ốp gạch độc đáo, kết hợp cùng hệ cửa kính khung nhôm cuốn hút. Bên cạnh đó, không gian mặt tiền được các kiến trúc sư thiết kế vô cùng tỉ mỉ, tính toán kỹ lưỡng nhằm mang đến cho không gian ngoại thất được hài hòa và nổi bật.
Ngoài ra hệ cột cứng cáp vuông vắn cùng những điểm nhấn kiến trúc được trang trí tỉ mỉ đan xen từ trên xuống dưới thành nét nổi bật cho ngôi nhà.
Công trình 1 tầng này là một trong những mẫu nhà đẹp theo phong thủy với kiến trúc hiện đại đã nhận được sự đánh giá cao của chủ đầu tư. Thêm vào đó, diện tích sân vườn rỗng rãi thuận lợi để gia chủ trồng cây xanh thêm tiểu cảnh và làm chỗ để xe. Với lối thiết kế theo phong cách nhà vườn đẹp hiện đại chủ đầu tư có một không gian sống trong lành, mát mẽ và thoải mái nhất sau những giờ làm việc căn thẳng.

Mẫu nhà vườn 1 tầng sở hữu cho mình vẻ đẹp hiện đại qua cách bố trí, tạo hình khối. Bên cạnh đó các mảng miếng vuông vắn, cột trụ kết hợp cùng màu sắc trẻ trung. Ngôi nhà được thiết kế cổng và hàng rào để phù hợp hài hòa với ngôi nhà của gia chủ. Với những vật liệu hoàn thiện hiện đại thông dụng góp phần giảm chi phí xây dựng căn nhà của gia chủ phần nào.
BỐ TRÍ CÔNG NĂNG SỬ DỤNG MẪU NHÀ MÁI NHẬT 1 TẦNG 8.5X15.55

Toàn bộ hồ sơ thiết kế công năng các phòng và kiến trúc đều được tư vấn hợp theo phong thủy và tuổi của chủ đầu tư. Kích thước các phòng, chiều cao nhà và kích thước cửa đều theo kích thước phong thủy.
Hồ sơ thiết kế bản vẽ nhà cấp 4 mái nhật đơn giản bao gồm:
- Bản vẽ chi tiết kiến trúc và phối cảnh ngoại thất 3D
- Bản vẽ chi tiết kết cấu công trình.
- Bản vẽ hệ thống ME
- Dự toán công trình: Chi tiết chi phí xây dựng, tổng mức đầu tư
Các kiến trúc sư tại Xây Dựng An Phát có nhiều kinh nghiệm trong lĩnh vực thiết kế thi công nhà ở với kiến thức chuyên môn và thẩm mỹ nghệ thuật cao cam kết sẽ sáng tạo hết mình mang lại không gian sống lý tưởng nhất cho bạn và gia đình.
Xem thêm các mẫu nhà mái nhật 1 tầng
THÔNG TIN LIÊN HỆ.
Công ty TNHH TM&DV Tư Vấn Thiết Kế Kiến Trúc Xây Dựng An Phát.
Hotline: 0984695979. Zalo 0984695979.
Email: xaydunganphat.ac@gmail.com
Website: nhadepductrong.com



1 bình luận
[…] –Nhà mái nhật 1 tầng 8.6×15.5m […]